مقدمة: - ان السياسة الاستيطانية الإسرائيلية في الضفة الغربية المحتلة هي واحدة من أكثر القضايا التي...
تشهد منطقة عش غراب في مدينة بيت ساحور تصعيدا خطيرا من قبل سلطات الاحتلال والمستوطنين، حيث...
في ظلّ صمتٍ دوليٍّ متزايد، يكشف معهد الأبحاث التطبيقية – القدس (أريج) عن طرح سلطات الاحتلال...
Introduction In a new provocative move, the Israeli occupation authorities have established a new settlement outpost...
المقدمة في خطوة استفزازية جديدة، أقدمت سلطات الاحتلال الإسرائيلي على وضع بؤرة استيطانية جديدة في قلب...
The village of Kisan, located southeast of the Bethlehem Governorate, has faced continuous attacks for many...
موقع الاستهداف، تقع قرية كيسان جنوب شرق محافظة بيت لحم، وتواجه منذ سنوات طويلة هجمات متواصلة...
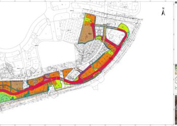
The Israeli Civil Administration has announced a new settlement expansion plan—No. 101-1284223—which outlines the construction of...
في أواخر شهر شباط من العام 2025، صادقت دولة الاحتلال الإسرائيلي على مخطط استيطاني جديدة...
أعلن ما يسمى بوزير المالية والوزير في وزارة الاحتلال الإسرائيلي بتسلئيل سموتريتش يوم الرابع عشر من...
أعلنت الإدارة المدنية الإسرائيلية، الذراع الأيمن لحكومة الاحتلال الاسرائيلي في الضفة الغربية المحتلة, في الاسبوع...
في السابع من شهر أيلول من العام 2023, صادقت بلدية الاحتلال الإسرائيلي في القدس المحتلة...
في العشرين من شهر أيار من العام 2023 وفي خطوة اثارت حفيظة المجتمع المحلي...
The Applied Research Institute – Jerusalem (ARIJ) In cooperation with Palestine Economic Policy Research Institute...
الانتهاك: توسع استيطاني. الموقع: قرية مسحة / محافظة سلفيت. تاريخ الانتهاك: تشرين أول 2022. الجهة...
كشفت سلطات الاحتلال الإسرائيلي منذ بداية شهر تشرين الأول من العام 2022, عن مصادقتها لعددا...
الانتهاك: الشروع بإقامة حي استعماري جديد استناداً لمخطط تنظيمي سابق. الموقع: قرية حارس الواقعة الى...
Violation: Establishing a new colonial block. Location: Haris village west Salfit. Date: October 2nd 2022....
الانتهاك: توسيع بؤرة استعمارية. الموقع: أراضي بلدة كفر ثلث شرق مدينة قلقيلية. تاريخ الانتهاك: 01/09/2022....
Violation: Expanding an outpost. Location: Kufur Thulth town / East Qalqilya. Date: September 1st 2022....
على التلة المقابلة لمستوطنة تل مناشية الإسرائيلية والى الجهة الشرقية منها, صادقت سلطات الاحتلال الإسرائيلي...
صادقت سلطات الاحتلال الإسرائيلي يوم التاسع من شهر اب من العام 2022 على المخطط الاستيطاني...
الانتهاك: مخطط تفصيلي لبناء حي استيطاني جديد. الموقع: أراضي بلدة ديرستيا وقرية حارس غرب سلفيت....
صادقت سلطات الاحتلال الإسرائيلي على مخطط استعماري، لتوسعة مستعمرة " تل منشيه" المقامة على أراضي...
The Israeli Occupation Authorities Ratified a colonial scheme to expand Tel Manshiya colony on confiscated...
........................................................
........................................................
........................................................
........................................................


This website and its content were initiated in 1993 by the Applied Research Institute – Jerusalem (ARIJ) and the Land Research Center (LRC) with the support from the European Union up until 2023. Since then, the Applied Research Institute – Jerusalem (ARIJ) has taken over the continued development and maintenance of the website. The views expressed remain solely those of ARIJ) and do not necessarily reflect those of the European Union.
© 2026 Copyright | ARIJ | All Rights reserved.
© 2026 Copyright | ARIJ | All Rights reserved.