مشروع (E1): الضربة القاضية لحل الدولتين وإعادة تشكيل الخريطة الجيوسياسية للضفة الغربية
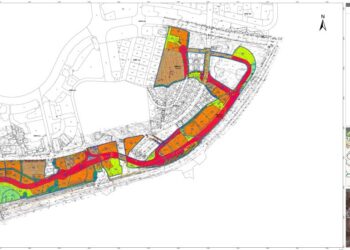
مقدمة منذ عقود طويلة، شكل مشروع البناء الاستيطاني في المنطقة المعروفة بـ (E1) شرق القدس، بين مستوطنة "معاليه أدوميم" والقدس، ...
مقدمة منذ عقود طويلة، شكل مشروع البناء الاستيطاني في المنطقة المعروفة بـ (E1) شرق القدس، بين مستوطنة "معاليه أدوميم" والقدس، ...
مقدمة، لطالما شكّلت أزمة المياه إحدى القضايا الأكثر صعوبة في الأراضي الفلسطينية المحتلة، إلا أنها في العقود القليلة الماضية اتخذت ...
في استمرار لسياسة الهدم والتضييق التي تنتهجها سلطات الاحتلال الإسرائيلي بحق الفلسطينيين وممتلكاتهم، نفذت آليات وجرافات تابعة لقوات الاحتلال، صباح ...
The village of Kisan, located southeast of the Bethlehem Governorate, has faced continuous attacks for many years by settlers and ...
موقع الاستهداف، تقع قرية كيسان جنوب شرق محافظة بيت لحم، وتواجه منذ سنوات طويلة هجمات متواصلة من قبل المستوطنين وقوات ...
Introduction: Since its occupation of the West Bank in 1967, Israel has pursued a long-term policy aimed at minimizing Palestinian ...
مقدمة: منذ احتلالها للضفة الغربية عام 1967، تنتهج إسرائيل سياسة طويلة الأمد تهدف إلى تقليص الوجود الفلسطيني في المناطق المصنفة ...
في خطوة تصعيدية جديدة ضمن سلسلة من الإجراءات التهويدية، أخطرت سلطات الاحتلال الإسرائيلي بتاريخ الثلاثين من تموز 2025 كافة منازل ...
In a new escalation within a systematic Judaization campaign, Israeli municipality of Jerusalem issued mass demolition orders on July 30, ...
مقدمة: يوما بعد يوم، وعاما بعد عام، يتكرر المشهد ذاته في الضفة الغربية المحتلة، عنف الى اعلى المستويات، واعتداءات مستوطنين ...
مقدمة: اختلف الشكل العام لشبكة الطرق في الضفة الغربية تبعا للظروف السياسية والعسكرية التي مرت بها المنطقة، فحتى العام 1967 ...
في الثامن عشر من شهر حزيران من العام 2025، تسلّم أهالي بلدتي سعير والشيوخ الواقعتين شمال شرق محافظة الخليل أمراً ...
في الثامن من شهر تموز من العام 2025، سلّمت سلطات الاحتلال الإسرائيلي أمرًا عسكريًا جديدًا يقضي بمصادرة أراضٍ فلسطينية وممتلكات ...
منذ تأسيسها، سعت دولة الاحتلال الإسرائيلي إلى إبعاد الفلسطينيين عن أرضهم بهدف السيطرة على المنطقة وتقييد حركة الفلسطينيين. وقد بدأت ...
قامت سلطات الاحتلال الإسرائيلي بتاريخ 7 تموز 2025 بنشر أمر عسكري جديد في الضفة الغربية المحتلة، يحمل عنوان: "أمر بشأن ...
Ever since its establishment, Israel pushed Palestinians away from their land to control the territory and confine their movement. Israel ...
Introduction On July 9, 2004, the International Court of Justice (ICJ), the principal judicial organ of the United Nations, issued a ...
مقدمة في التاسع من تموز 2004، أصدرت محكمة العدل الدولية، وهي الجهاز القضائي الرئيسي للأمم المتحدة، رأيا استشاريا تاريخيا اعتبرت ...
An Over View Since the beginning of 2023, the northern and central Palestinian Jordan Valley has witnessed a dangerous escalation ...
المشهد العام منذ مطلع عام 2023، تشهد الأغوار الفلسطينية الشمالية والوسطى تصعيدًا خطيرًا في اعتداءات المستوطنين الإسرائيليين، في إطار وغطاء ...
As part of Israel's systematic violations against Palestinian land in the occupied West Bank", the Israeli occupation authorities, on June ...
في خطوة جديدة تُضاف إلى سلسلة الانتهاكات الإسرائيلية بحق الأراضي الفلسطينية في الضفة الغربية المحتلة، سلمت سلطات الاحتلال الإسرائيلي بتاريخ ...
General Context: Overview The villages of Al-Minya and Kisan, located within an area called by the Gush Etzion settlement Council ...
في السياق العام: الخلفية الجغرافية والاستراتيجية تقع قريتا المنيا وكيسان في جنوب-شرق محافظة بيت لحم جنوب الضفة الغربية، وتتميزان بموقع ...
عندما دخلت منظمة التحرير الفلسطينية (م. ت. ف.) في عملية السلام مع إسرائيل من خلال توقيع اتفاقية أوسلو بتاريخ 13 ...
........................................................
........................................................
........................................................
........................................................


This website and its content were initiated in 1993 by the Applied Research Institute – Jerusalem (ARIJ) and the Land Research Center (LRC) with the support from the European Union up until 2023. Since then, the Applied Research Institute – Jerusalem (ARIJ) has taken over the continued development and maintenance of the website. The views expressed remain solely those of ARIJ) and do not necessarily reflect those of the European Union.
© 2026 Copyright | ARIJ | All Rights reserved.
© 2026 Copyright | ARIJ | All Rights reserved.