The Israeli Civil Administration has announced a new settlement expansion plan—No. 101-1284223—which outlines the construction of 1,990 new settlement units on approximately 175.9 dunums of land extending towards the east and southeast of the Gilo settlement. This development is far from an ordinary housing project; it is a politically charged move that poses serious consequences for the geography and demography of Bethlehem and its surrounding areas.
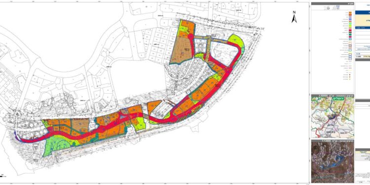
 Photo 1: Plan No. 101-1284223
Photo 1: Plan No. 101-1284223
The plan as depicted will be implemented north of the Tunnel Road (Part of the Israeli Bypass Route No. 60) which was constructed on confiscated Palestinian land belonging to Beit Jala citizens and west of the Tantur Ecumenical Institute. The plan completes the southern construction sequence of Gilo settlement mainly
- Plan Number 13157: which states the construction of 797 units – 228.3 dunums of land south of Gilo and
- Plan No. 13261 which states the construction of 1200 units on 269.4 dunums of land (See Map 1)
The plan also completes the eastern settlement construction sequence mainly
- Giv’at Hamatos Settlement Plan
- Har Homa West Plan and Plan No. 101-0285411 which states the construction of 540 settlement units on 27.6 dunums of land belonging to Bethlehem Governorate. Plan No. 101-0285411 comes as part of a larger plan that is going to be implemented in the area, named “Har Homa E or Har Homa West” and include the construction of 2200 settlement units under TPS No. 15399
Map 1: Israeli settlement plans north of Bethlehem city
The Updated Version of the Plan
It is worth noting that Plan No. 101-1284223 is an updated version of Plan No. 101-0125195 “Southeast Gilo Master Plan” which was prepared back in 2019 and stated the constriction of 3045 units; however its construction advancement as a detailed plan was halted.
 Plan No. 101-0125195 “Southeast Gilo Master Plan”
Plan No. 101-0125195 “Southeast Gilo Master Plan”
Later this year, a new town planning scheme was prepared instead and combined the two plans. The new plan further combines with TPS No. 101-1164433 – “Mevo’ot Gilo” which states the construction of 805 residential settlement units on 22.2 dunums with public buildings and open public spaces and a road system connecting to Shlomo Doga Street, in southeast Gilo and another plan in the area that holds number 101-0766154 which states the construction of a bus parking lot, and an entrance/exit ramps to the Gilo settlement. The goal of the plan is to establish an additional access road to the south of the Gilo neighborhood in order to meet traffic needs in light of the neighborhood’s densification in the southern part according to approved plans.
 TPS No. 101-1164433 – “Mevo’ot Gilo”
TPS No. 101-1164433 – “Mevo’ot Gilo”
As Israel continues to unilaterally shape the land of the occupied West Bank through settlement construction and expansion, this new plan represents a dangerous escalation in the fragmentation of Palestinian territory, most specifically, the geographical separation of Bethlehem from Jerusalem, and the violation of international laws that protect occupied populations from illegal land confiscation and displacement.
Bethlehem, has increasingly become an isolated enclave within its own land. The proposed expansion of the Gilo settlement, originally established in the 1970s on land expropriated from Beit Jala, now pushes deeper into Palestinian territory. The targeted land for this new plan includes privately owned Palestinian lands.
Geographically speaking, the plan forms part of a broader strategy to surround Bethlehem from the north, particularly by expanding Israeli control along the Jerusalem–Bethlehem northern area. This expansion effectively cuts Bethlehem off from its historic link with —Jerusalem—to which it is spiritually, culturally, and economically tied. Once a mere 10-minute drive in then past, reaching Jerusalem today for most Palestinians involves a complex system of crossings, permits, and the Separation Wall, making access a torture for Palestinians.
Moreover, Bethlehem and Jerusalem share a sacred connection that is being systematically destroyed. For Palestinians, the inability to access holy sites freely——undermines also religious freedom and deeply wounds the cultural heritage of the Palestinian people. Settlements like Gilo are not neutral expansions; they are part of an intentional effort to Judaize the landscape, replacing native Palestinian communities with exclusively Jewish infrastructure and demographic control.
Violations of International Law
The construction and expansion of Israeli settlements in occupied Palestinian territory are clear violations of international law, particularly under the following legal frameworks:
- Fourth Geneva Convention (1949) – Article 49 of this convention explicitly states: “The Occupying Power shall not deport or transfer parts of its own civilian population into the territory it occupies.”
 The building of settlements and the transfer of Israeli civilians into the West Bank—including through Plan 101-1284223—constitutes a direct breach of this provision.
- UN Security Council Resolution 2334 (2016) – This resolution reaffirms that the establishment of settlements has “no legal validity” and constitutes a “flagrant violation under international law.” It calls upon Israel to immediately and completely cease all settlement activities in the occupied Palestinian territory, including East Jerusalem.
- The Hague Regulations (1907) – As part of customary international law, these regulations prohibit an occupying power from making permanent changes to the infrastructure or laws of occupied territory unless absolutely necessary for military purposes. No such necessity exists in the current context.
- International Covenant on Civil and Political Rights (ICCPR) – The settlement expansions violate Palestinians’ rights to freedom of movement, access to property, and the right to self-determination, all of which are protected under the ICCPR and other human rights instruments.
Despite these clear prohibitions, Israel continues to pursue unilateral policies that strip Palestinians of their land, fragment their communities, and render any hope for a two-state solution increasingly untenable.
Prepared by:  
The Applied Research Institute – Jerusalem

 
			











