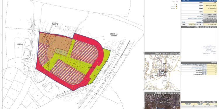
في أواخر شهر شباط من العام 2025، صادقت دولة الاحتلال الإسرائيلي على مخطط استيطاني جديدة لبناء حي سكني للمستوطنين على مساحة 22.2 دونما من الأراضي الفلسطينية لتابعة لمدينة بيت جالا، في محافظة بيت لحم (جنوب مدينة القدس). ويحمل المخطط الاستيطاني الجديد الرقم 101-1164433، ويهدف إلى إقامة حي استيطاني جديد إلى الشرق من مستوطنة “جيلو” وبمحاذاة الطريق الالتفافي الاسرائيلي رقم 60، وسيتألف الحي الاستيطاني الجديد من 805 وحدة سكنية استيطانية.
تجدر الإشارة الى أن الأراضي الفلسطينية المستهدفة في المخطط الاستيطاني الجديد قد تم ضمها بشكل غير قانوني وأحادي الجانب من قبل دول الاحتلال الإسرائيلي عقب حرب عام 1967، لتصبح ضمن الحدود الجديدة لبلدية القدس، ولاحقا تم فصلها بالكامل عن أصحابها الفلسطينيين الأصليين من خلال بناء جدار الفصل العنصري الإسرائيلي في العام 2004. مع انتهاء من بتاء الجدار في المنطقة. والجدير بالذكر أيضا الأرض المستهدفة في المخطط الاستيطاني الجديد, التي يُخطط الاحتلال الإسرائيلي إقامة الحي الاستيطاني عليها، مزروعة بأشجار الزيتون، وتضم حوالي 275 شجرة زيتون اضافة الى بعض الأشجار الحرجية، وهي تمثل جزءاً من التراث الثقافي والزراعي الفلسطيني. وقد دأبت العائلات الفلسطينية على مدى أعوام عديدة على زراعة هذه الأرض، لكن باتت اليوم هذه العائلات محرومة من الوصول إلى أراضيها بسبب بناء الجدار والإجراءات الإسرائيلية التي قيدت وصول الفلسطينيين الى أراضيهم بالكامل.
الصورة 1: المخطط الاستيطاني الاسرائيلي رقم 101-1164433
ويمثل المخطط الاستيطاني الذي تمت المصادقة عليه مؤخرًا أكثر من مجرد مشروع سكني؛ فهي تعد جزء من سياسة إسرائيلية طويلة المدى تهدف إلى تقويض الجغرافيا الفلسطينية والتلاعب بالتوزيع الديموغرافي. فمن الناحية الجغرافيًة، ستُسهم هذه المستوطنة في تطويق مدينة بيت جالا من الشمال، إلى جانب سلسلة من المخططات الاستيطانية التي تمت الموافقة عليها مؤخرًا لإنشاء حزام من المستوطنات شمال مدينة بيت جالا (ومنطقة بيت لحم عمومًا)، مما يعزز السيطرة الإسرائيلية على الممر الرابط بين بيت لحم والقدس. كما سوف يعمل هذا المخطط الاستيطاني فعليًا على قطع التواصل الجغرافي بين مدينتي بيت جالا والقدس، والحد من وصول الفلسطينيين إلى المدينة المقدسة، وعزل بيت جالا ضمن شبكة من المستوطنات والطرق الالتفافية وجدار الفصل العنصري.
الخطط الاستيطانية الإسرائيلية شمال بيت لحم
ومن الناحية الديموغرافية، فإن تدفق المستوطنين الإسرائيليين للعيش في هذا الحي الاستيطاني الجديد مستقبلاً (عقب تنفيذ المخطط) سيُحدث تغييرًا جذريًا في التوازن الديمغرافي، من خلال ترسيخ الوجود الاستيطاني الإسرائيلي على حساب الفلسطينيين الذين يعانون أصلاً من التهجير والخسارة الاقتصادية. وتمثل الأرض المستهدفة، المزروعة بأشجار الزيتون الرومانية القديمة والمنفصلة عن أصحابها الفلسطينيين بسبب بناء الجدار، رمزًا للعلاقة العميقة والمتجذرة بين الفلسطينيين وأرضهم. وتهدف هذه الخطة إلى طمس هذه العلاقة وتكريس السيطرة الإسرائيلية الدائمة على الأراضي.
وبموجب اتفاقية جنيف الرابعة بشأن حماية الأشخاص المدنيين في وقت الحرب، 1949, المادة 49, فقد حظرت وبشكل صريح النقل القسري الجماعي أو الفردي للأشخاص، أو نفيهم من مناطق سكناهم إلى أراض أخرى). وتُعدّ هذه الأرض جزءًا من الأراضي التي ضمتها إسرائيل بشكل غير قانوني وأحادي الجانب لتوسيع حدود بلدية القدس عقب احتلالها للأراضي الفلسطينية في 1967. وعلى الرغم من الرفض الدولي الواسع لهذه السياسات، تواصل إسرائيل توسيع مستوطناتها في عمق الضفة الغربية، مما يؤدي إلى تقويض المجتمعات الفلسطينية وتشديد السيطرة على الأراضي الفلسطينية المحتلة. وصرحت فرانشيسكا ألبانيزي، المقررة الخاصة للأمم المتحدة المعنية بحقوق الإنسان في الأراضي الفلسطينية المحتلة: “هذا المشروع لا ينتهك القانون الدولي فحسب، بل يُدمّر فعليًا الفضاء الجغرافي والسياسي اللازم لقيام دولة فلسطينية. على المجتمع الدولي أن يتجاوز الإدانة اللفظية ويتخذ خطوات ملموسة لمحاسبة إسرائيل.”
اعداد:















